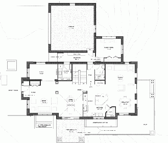
Floor plans

          Building Surveyor / Expert en bâtiment

Peter White BA(Hons), EurBE, MCIOB.  Building surveying, quantity surveying, consultancy, architectural and management services
Copyright © All rights reserved. Made By PDW
Home.
 
Surveys.
 
Architectural services.
 
Floor plans.
 
Quantity surveying.
 
Project co-ordination.
 
Consultancy.
 
Larger projects.
 
Contact.
 
Home.
Surveys.
Architectural services.
Floor plans.
Quantity surveying.
Project co-ordination.
Consultancy.
Larger projects.
Contact.

My French and European construction news blog

 

One call is all it takes and a floor plan can be quickly prepared in any format you require.

Great for selling or letting a property. Ideal for printing in your brochures and a real bonus to web based details.


Don't forget, we can do it all.

Use the Contact page to get in touch

FLOOR PLANS

Floor plans are becoming more and more popular for selling or letting  properties as they are a great way to show the interior spaces of a building.  With floor plans you can quickly see how spaces and rooms relate to one another, the direction they face and their size.

 

These floor plans can be used with all your publicity, web sites or brochures.


All floor plans are easy to understand and, while metric is the standard, you can have them in both metric and imperial sizes.